-
新耐震
-
駅近
- 所在地
- 東京都日野市高幡1000-2
- アクセス
- 京王線「高幡不動」徒歩1分
多摩都市モノレール「高幡不動」徒歩3分
物件概要
| 竣工年月 | 1999年3月 |
|---|---|
| 規模 | 地上6階 |
| 主要構造 | RC造 |
| 施工会社 | 鴻池組 |
| 延床面積 | 3329.80㎡ |
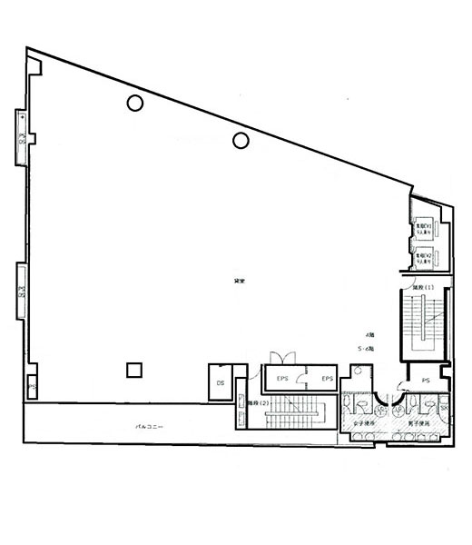
| 基準階貸室面積 | 387.16㎡ |
| 天井高 | 2,600mm |
| 床仕様 | タイルカーペット |
| 床荷重 | 500Kg/㎡ |
| 電気容量 | 70VA/㎡ |
| 空調方式 | 個別空調 |
| エレベーター | 2台 |

新耐震
駅近
| 竣工年月 | 1999年3月 |
|---|---|
| 規模 | 地上6階 |
| 主要構造 | RC造 |
| 施工会社 | 鴻池組 |
| 延床面積 | 3329.80㎡ |
| 基準階貸室面積 | 387.16㎡ |
| 天井高 | 2,600mm |
| 床仕様 | タイルカーペット |
| 床荷重 | 500Kg/㎡ |
| 電気容量 | 70VA/㎡ |
| 空調方式 | 個別空調 |
| エレベーター | 2台 |